Les + Produits :
• Fabriqué en France
• Ossature Traitée autoclave classe 3 : haute qualité
• Demande très peu d’entretien.
• Module mur plus bardage préfabriqué : facilité d’assemblage
• Configuration possible sur notre site internet
• Isolation totale
• Menuiserie double vitrage Alu et PVC
CARACTÉRISTIQUES TECHNIQUES
Essence : PIN SYLVESTRE
Provenance : PAYS SCANDINAVES
DESCRIPTION!
Classe naturelle : Classe 3
Traitement autoclave : Classe 4
Section de l’ossature : 45x70mm
Section planches de bardage : 20x70mm
Ce studio est entièrement conçu avec des bois de qualité. L’essence de bois est du sapin rouge du Nord aussi appelé le Pin Sylvestre. C’est un bois plus dense que du sapin blanc (épicéa) par exemple et qui offrira donc à votre studio de jardin une grande durabilité.
L’assemblage se fait grâce à des panneaux préfabriqués et isolés à assembler entre eux.
Le Studio Français est une véritable pièce de vie supplémentaire à installer dans votre jardin. Idéal comme chambre, atelier, pool-house, bureau… . Ajoutez dans votre jardin une pièce confortable grâce à son isolation intérieure et aux menuiseries en Alu et PVC gris anthracite avec double vitrage 4/16/4mm. Les Portes et les fenêtres sont fournies avec une serrure à clés.
Les murs sont en ossature bois de section 45x70mm. Ils sont préfabriqués dans nos usines sous forme de modules qui se vissent entre eux. Le bardage est aussi sous forme de panneaux qui viennent se visser sur les murs. La couverture est en EPDM, ce qui garantit une étanchéité parfaite et durable avec boite à eau en PVC et coude d’évacuation inclus. Les Studios sont à poser sur une dalle en béton. N’oubliez pas de prévoir l’arrivée d’eau et d’électricité.
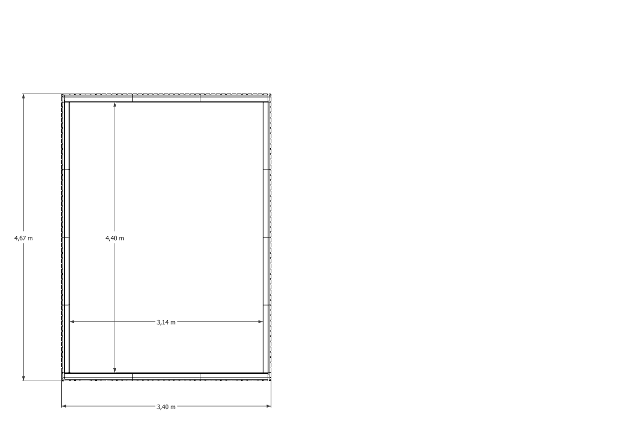
Détails des dimensions
Largeur intérieure : 3,13 m
Profondeur intérieure : 4,4 m
Largeur hors-tout : 3,35 m
Profondeur hors-tout : 4,62 m
Surface intérieure : 13,772 m².
Surface hors-tout : 15,477 m²
Hauteur intérieure : 2,145 m
Hauteur hors-tout : 2,7 m
Dimensions de dalle (emprise aux sols pour déclaration préalable de travaux) :
Largeur extérieure des murs : 3,3 m
Profondeur extérieure des murs : 4,57 m
Nous resterons à votre écoute pour toute question sur le montage de votre Studio Français.
Le traitement du bois est garanti 10 ans.
La livraison est gratuite dans toute la France, commandez aujourd’hui votre Studio Français et recevez le dans 5 à 6 semaines.
Une fois votre commande effectuée, le transporteur vous contactera afin de planifier avec vous d’une date de livraison.
Si vous avez besoin d’une configuration spécifique rendez-vous sur notre configurateur en ligne
DÉTAILS DES OPTIONS :
Bardage extérieur :
Bardage vertical ajouré section 21×70 mm traité autoclave gris
En option :
Bardage vertical ajouré section 21×70 mm traité autoclave noir
Bardage intérieur :
Plaques en OSB – 250 x 110 cm, ép.12 mm déjà installées sur les murs. Les jonctions de mur sont cachées par des baguettes de finition en bois massif.
En option :
Contreplaqué 100% peuplier
100% made in France
250 x 122 cm, ép.8 mm
Couleur naturelle sans traitement chimique
Kit de plaque avec colle à monter soi-même.
Kit plancher en ossature bois.
L’ossature est en 45 x 145 mm, c’est du pin sylvestre traité autoclave.
Dans ce kit, vous trouverez toute la quincaillerie nécessaire à l’assemblage, l’isolation en laine de roche de 60 mm d’épaisseur ainsi que des plaques d’OSB en 21 mm d’épaisseur.
Fenêtre 1 Vantail tirant gauche Gris anthracite 7016 extérieur et Blanc 9016 intérieur pour côtes tableau H 95cm X L 60cm. Côtes hors tout H 95,5cm X L 65cm. Son excellente performance thermique vous apportera un grand grand confort thermique. Sa finition gris anthracite extérieure apportera de la modernité à vos façades; Sa finition blanche intérieure sera vous garantir une excellente luminosité à l’intérieur.
Classe A : excellente isolation thermique
Coefficient d’isolation thermique (Uw) 1.4
Porte-fenêtre 1 Vantail tirant droite Gris anthracite 7016 extérieur et Blanc 9016 intérieur pour côtes tableau H 215cm X L 80cm. Côtes hors tout H 215,5cm X L 85cm. Son excellente performance thermique vous apportera un grand grand confort thermique. Sa finition gris anthracite extérieure apportera de la modernité à vos façades; Sa finition blanche intérieure sera vous garantir une excellente luminosité à l’intérieur.
Classe A : excellente isolation thermique
Coefficient d’isolation thermique (Uw) 1.4
Poignée de tirage moulée extérieure toute hauteur sur vantail principal.
Baie Coulissante à double rupture de pont thermique RAL 7016 granité. Pour tous types de pose côtes tableau H215 X L180cm. Côtes fab Hors tout H214 X L179cm.
Baie coulissante dormant 70mm avec vantail principal à droite équipée d’une barre de tirage extérieure toute hauteur, d’une coquille intérieure, poignée de fermeture extérieure et cylindre à clé traversant. 2 points de fermeture par vantail.
Double vitrage 4/16/4 fe + arg & WE de série. Boucliers thermiques latéraux fournis à clipser après pose.
Coefficient d’isolation thermique (Uw) 1.7
Classe B : très bonne isolation thermique
Fenêtre 2 Vantaux Gris anthracite 7016 extérieur et Blanc 9016 intérieur pour côtes tableau H 95cm X L 120cm. Côtes hors tout H 95,5cm X L 125cm. Son excellente performance thermique vous apportera un grand grand confort thermique. Sa finition gris anthracite extérieure apportera de la modernité à vos façades; Sa finition blanche intérieure sera vous garantir une excellente luminosité à l’intérieur.
Classe A : excellente isolation thermique
Coefficient d’isolation thermique (Uw) 1.4
PRÉSENTATION DE LA SOCIÉTÉ
La société Abri Français a été créée pour faciliter l’accès à des produits de qualité pour la réalisation de votre Abri et Studio de jardin. Notre gamme s’adresse aussi bien aux particuliers via la vente en ligne de nos produits qu’aux professionnels. C’est simple, commandez votre article via notre site internet ou les marketplaces partenaires, celui-ci sera préparé dans nos ateliers, conditionné et soigneusement transporté jusque chez vous. Afin de compléter votre projet, retrouvez une large gamme de pergolas bois via notre société Ma Pergola Bois ainsi que des terrasses en bois exotiques ou autoclave par notre société Terrasse en bois.fr.
DÉTAILS LIVRAISON
Nos livraisons sont réalisées par les transports MARMETH.
Elles s’effectuent par semi avec chariot embraqué exclusivement.
Semaine 1/4
Les commandes reçues sont préparées dans notre atelier avec un délai de 3 à 4 semaines et remises le vendredi à notre transporteur.
Vous recevez un sms afin de vous confirmer la prise en charge de votre colis. Ce même sms vous donne accès à un espace dédié sur la plateforme de notre transporteur afin de visualiser le statut de votre livraison.
Semaine 5
Vous êtes contactés afin de planifier la date et heure de livraison.
Semaine 6
Livraison de votre commande.
Vous recevez un ou plusieurs colis, filmés, cerclés et déchargés devant chez vous.
A noter : les mois d’avril à juin, le délai peut être allongé d’une semaine.























































Avis
Il n’y a pas encore d’avis.